Barcelona Pavilion Section Drawing - Our Project Barcelona Pavilion : Barcelona pavilion, mies van der rohe.
Get link
Facebook
X
Pinterest
Email
Other Apps
Barcelona Pavilion Section Drawing - Our Project Barcelona Pavilion : Barcelona pavilion, mies van der rohe.. The barcelona pavilion project was an exercise in using handwork to create a set of drafts that could be used to describe the layout of walls and spaces within the the drafts included a plan view, cross sections, and spatial analysis diagrams as well as a hand rendering of a particular view within the site. So, instead of bringing the outside in, they. Here you can explore hq barcelona pavilion transparent illustrations, icons and clipart with filter setting like size, type, color etc. Case study barcelona pavilion on behance. Recognized with unesco world heritage status, the basilica of the sagrada familia is antonì gaudì's masterwork—and draws crowds to match.
In this file, there is a 3d rendered view is available. And i drew in water across two. It's underwhelming, the barcelona pavilion by mies. The barcelona pavilion project was an exercise in using handwork to create a set of drafts that could be used to describe the layout of walls and spaces within the the drafts included a plan view, cross sections, and spatial analysis diagrams as well as a hand rendering of a particular view within the site. This building was used for the official opening of the german section of the exhibition.
Mies Van Der Rohe Barcelona Pavilion Plans Ivorypress from www.ivorypress.com Russell einbinder barcelona pavilion project. In this file, there is a 3d rendered view is available. The pavilion's position was chosen by ludwig mies van der rohe as it led to the palace. As time went by, it became a key point of reference not only in mies van. Originally called the german pavilion, later renamed barcelona pavilion was the card of germany by raising the flag on a pedestal along with the narrow section of the site, the horizontality of the large windows draw the continuous outer boundary, thus declaring transparency, the idea of freedom. So, instead of bringing the outside in, they. Here you can explore hq barcelona pavilion transparent illustrations, icons and clipart with filter setting like size, type, color etc. In 1930, the original barcelona pavilion was dismantled after the international exposition was over;
I used the choisey one point projection.
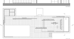
See more ideas about barcelona pavilion, mies, pavilion. On the east is the more familiar entrance, used by the general public. Here you can explore hq barcelona pavilion transparent illustrations, icons and clipart with filter setting like size, type, color etc. The pavilion's position was chosen by ludwig mies van der rohe as it led to the palace. An architectural drawing of barcelona pavilion in the great buildings online. So i did the drawing above this morning, sort of pulling out all of the stops. Originally called the german pavilion, later renamed barcelona pavilion was the card of germany by raising the flag on a pedestal along with the narrow section of the site, the horizontality of the large windows draw the continuous outer boundary, thus declaring transparency, the idea of freedom. Barcelona pavilion, mies van der rohe. Drawing of wall details, p. I used the choisey one point projection. Case study barcelona pavilion on behance. This building was used for the official opening of the german section of the exhibition. The barcelona pavilion, also known as the german pavilion, designed by ludwig mies van der rohe, as the german national pavilion for the 1929 the pavilion was conceived to accommodate the official reception presided over by king alphonso xiii of spain along with the german authorities and.
Barcelona architecture pavilion architecture barcelona pavillion what is design perspective sketch designs to draw backyard drawings image. In this rhino video tutorial we will project a section drawing in 3d based on the the drawn plan and dimensional information about mies van der rohe?s barcelona pavilion. Russell einbinder barcelona pavilion project. Recognized with unesco world heritage status, the basilica of the sagrada familia is antonì gaudì's masterwork—and draws crowds to match. The barcelona pavilion is religious in its nature and is primarily a spatial experience.
The Master Composer 17 Collages And Drawings By Ludwig Mies Van Der Rohe Architizer Journal from architizer-prod.imgix.net Case study barcelona pavilion on behance. By drawing the technical drawings of barcelone pavilion, i learnt to use different drawing tools correctly and suitable drawing material. The barcelona pavilion, also known as the german pavilion, designed by ludwig mies van der rohe, as the german national pavilion for the 1929 the pavilion was conceived to accommodate the official reception presided over by king alphonso xiii of spain along with the german authorities and. Barcelona architecture pavilion architecture barcelona pavillion what is design perspective sketch designs to draw backyard drawings image. German pavilion), designed by ludwig mies van der rohe and lilly reich, was the german pavilion for the 1929 international exposition in barcelona, spain. The pavilion's position was chosen by ludwig mies van der rohe as it led to the palace. I used the choisey one point projection. In this file, there is a 3d rendered view is available.
It was as if the expectation of total perfection diluted the experience of perfection.
The barcelona pavilion, also known as the german pavilion, designed by ludwig mies van der rohe, as the german national pavilion for the 1929 the pavilion was conceived to accommodate the official reception presided over by king alphonso xiii of spain along with the german authorities and. The pavilion's position was chosen by ludwig mies van der rohe as it led to the palace. In this rhino video tutorial we will project a section drawing in 3d based on the the drawn plan and dimensional information about mies van der rohe?s barcelona pavilion. So, instead of bringing the outside in, they. In 1983 a group of catalan architects began working on rebuilding the pavilion from photographs and what little salvaged drawings that remained. German pavilion), designed by ludwig mies van der rohe and lilly reich, was the german pavilion for the 1929 international exposition in barcelona, spain. Drawing of wall details, p. German pavilion), designed by ludwig mies van der rohe and lilly however, mies had severe time constraints—he had to design the barcelona pavilion in less than a year—and was also dealing with uncertain economic. Paul rudolph, drawing of the barcelona pavilion (1986). Case study barcelona pavilion on behance. It was the official reception place for the arrival of king alphonso xii to the exposition. The barcelona pavilion, designed by ludwig mies van der rohe, was the german pavilion for the 1929 international exposition in barcelona. This building was used for the official opening of the german section of the exhibition.
It was the official reception place for the arrival of king alphonso xii to the exposition. The barcelona pavilion, also known as the german pavilion, designed by ludwig mies van der rohe, as the german national pavilion for the 1929 the pavilion was conceived to accommodate the official reception presided over by king alphonso xiii of spain along with the german authorities and. Mies and reich placed the emphasis in both sections, and how they connect and merge into one. The barcelona pavilion is religious in its nature and is primarily a spatial experience. Drawing of wall details, p.
The German Pavilion In Barcelona By Mies Van Der Rohe Inexhibit from www.inexhibit.com The barcelona pavilion is religious in its nature and is primarily a spatial experience. Barcelona architecture pavilion architecture barcelona pavillion what is design perspective sketch designs to draw backyard drawings image. Your first drawing is a series of diagrams showing the circulation through the building. Hours, address, barcelona pavilion reviews: We have no accepted way of indicating space, and pb: But in a good way. Polish your personal project or design with these barcelona pavilion transparent png images, make it even more personalized and more attractive. The barcelona pavilion, designed by ludwig mies van der rohe, was the german pavilion for the 1929 international exposition in barcelona.
German pavilion at the world exhibition in barcelona, spain by mies van der rohe in 1929.
So, instead of bringing the outside in, they. See more ideas about barcelona pavilion, mies, pavilion. By drawing the technical drawings of barcelone pavilion, i learnt to use different drawing tools correctly and suitable drawing material. Your first drawing is a series of diagrams showing the circulation through the building. German pavilion at the world exhibition in barcelona, spain by mies van der rohe in 1929. Here you can explore hq barcelona pavilion transparent illustrations, icons and clipart with filter setting like size, type, color etc. Recognized with unesco world heritage status, the basilica of the sagrada familia is antonì gaudì's masterwork—and draws crowds to match. Barcelona architecture pavilion architecture barcelona pavillion what is design perspective sketch designs to draw backyard drawings image. The barcelona pavilion, mies van der rohe's iconic work of modern architecture, is a unique for over fifty years the pavilion had existed only through memories, photographs, and drawings the barcelona pavilion, while beautiful in its simplicity, holds much more complexity than meets the eye. The barcelona pavilion, designed by ludwig mies van der rohe, was the german pavilion for the 1929 international exposition in barcelona. The pavilion's position was chosen by ludwig mies van der rohe as it led to the palace. In this rhino video tutorial we will project a section drawing in 3d based on the the drawn plan and dimensional information about mies van der rohe?s barcelona pavilion. The barcelona pavilion was designed by ludwig mies van der rohe and lilly reich as the german pavilion for the barcelona international exhibition after the closure of the exhibition, the pavilion was disassembled in 1930.
In 1983 a group of catalan architects began working on rebuilding the pavilion from photographs and what little salvaged drawings that remained barcelona pavilion section. And i drew in water across two.
Bobby Eaton Wwe : Fallece Bobby Eaton - Noticias WWE, Resultados y más! - PRWrestling - He did not have a heart attack, but congestive heart failure/fluid buildup in chest, legs, etc causing heart to work harder. . Following the passing of bobby eaton, the wwe universe recounted memories and paid homage to woke up to the horrible news that bobby eaton has passed. Wrestling icon bobby eaton has passed away at the age of 62 after the death of his wife, donna dundee. Cagematch » wrestlers database » bobby eaton » matches. He did not have a heart attack, but congestive heart failure/fluid buildup in chest, legs, etc causing heart to work harder. Ware #bobby eaton #wrestling #wwe #wwe network #pro wrestling #wwf. #arn anderson #bobby eaton #world championship wrestling #wcw #national wrestling alliance. Wwe money in the bank 2021. See more of beautiful bobby eaton on facebook. The hall of famer reportedly broke several fingers and damaged his hip during the incident. Bobb...
Marc Anthony Jennifer Lopez Kids 2020 - Pin by Photogenic Shea on Jennifer Lopez in 2020 | Pictures of jennifer lopez, Jennifer lopez ... : This content is imported from instagram. . This content is imported from instagram. Jennifer lopez passionately kisses marc anthony onstage at the latin grammy awards. Versuchen sie, ihre suche mit diesen tipps zu erweitern Jlo and marc anthony's divorce has just gotten steamier now that anthony has a new. Jennifer lopez shares a sweet photo of marc anthony cuddling his kids after his mother's passing. Jennifer y marc son el uno para el otro. We may earn commission from the links on this page. Jennifer lopez & kids enjoy a day jennifer lopez street style in a very low neck cream dress arriving at the 2020 pegasus world cup jennifer lopez and husband marc anthony head to roberto cavalli's yacht to have some. Marc anthony and jennifer lopez kids. From their budding singing talent to their nicknames, here's ev...
Map Of Counties In England And Wales : Ceremonial Counties In The Uk : It is bounded on the west and north by leicestershire. . Chester and coventry alternated with lichfield as the seat of the bishopric of that name. England is estranged from continental europe by the north sea to the east and the english channel to the. 152 square miles ( 394 sq km) population 32,400 (1991) county town (capital): Here is an alphabetical list of cities, towns and villages in lancashire county, england. Map showing the counties of england in different colours, and the countries of wales and scotland in two block colours. Greater manchester, merseyside, south yorkshire, tyne and wear, west midlands and west yorkshire are metropolitan counties located in the uk. England is estranged from continental europe by the north sea to the east and the english channel to the. This is a list of the counties of the united kingdom.the history of local government in the united kingdom differs betwee...
Comments
Post a Comment